
The Avoca - A Brand New Design, NOW OPEN!
About the Home:
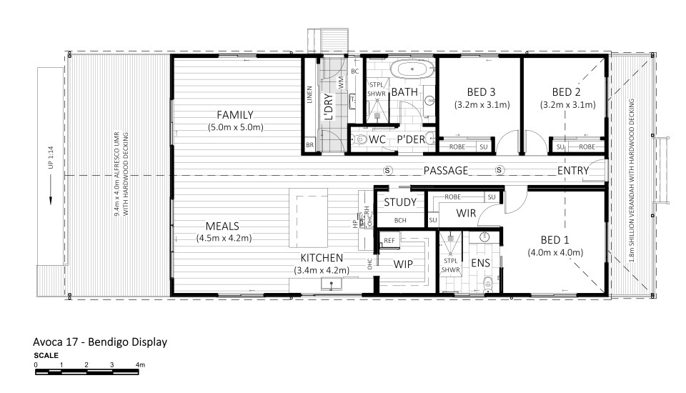
A stunning three-bedroom home with room for the whole family, the Avoca 17 is one of our most loved home designs. The classic country style verandah welcomes you into the home's long entrance hallway, where you find the home's 3 bedrooms, the main with its own ensuite and walk-in robe. The rear of the home encompasses the shared living zones with added touches throughout that elevate the Avoca 17 to a modern marvel.
Our clients' most favourite design features include the separate study, large walk-in pantry, central family bathroom with a separate powder room and the huge open-plan kitchen and living area all opening onto the rear alfresco deck. The Avoca 17 is classic country styling all wrapped up in a modern layout for everyday living.
Home details:
- 3 Bedrooms
- 1 Living areas
- 2 Bathrooms and 1 powder rooms
- Footprint: 22.8m x 9.4m
- Internal area: 159.8m2
- External area: 55.5m2
- Total area: 215.3m2
Pricing:
Talk to one of our New Home Consultants to find out about pricing.
Please note: Standard transport is included in the starting package prices up until 200km from Bendigo. Additional transport costs outside of 200km will be charged based on the location.
If you would like to discuss the pricing in more detail, please fill out the form on this page and a member of our team will be in touch, or call 1800 008 024.
